ROOM
イノセンスリゾート in 千葉レゾール~
お部屋の紹介
イノセンスリゾートでは、
コテージ・ドームテント・ ノルテントと
異なるタイプのお部屋をご用意しました。
自然景観に恵まれたリゾート地で
あなただけの滞在をお楽しみください。
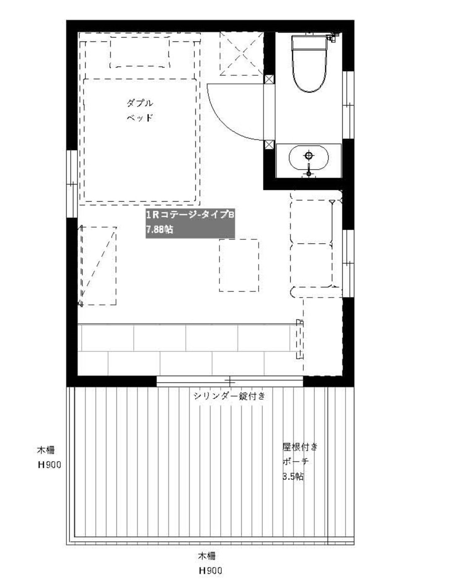
01 COTTAGE
コテージ
SWEET COTTAGE
スイートコテージ
| 棟数 | 5棟 |
|---|---|
| 定員 | 1~2名 |
| ベッド数 | ダブルベッド×1台 (但し、お部屋に因り、ソファベッドが備えられているお部屋が有ります。ベッドを分けてお休みになりたい方は、ソファベッド利用も可能ですので、予約時にその旨、ご記入頂ければ優先的にソファベッド有りのお部屋をお取り致します。) |
| 設備 | 客室トイレ、洗面所、冷蔵庫、エアコン、電気ケトル、TV、ハンガーラック ※宿泊者専用男女別のシャワールームを別で設けております(各洗面・シャワー完備) |
| 広さ | 建物13.04㎡ 専用テラス4.34㎡と5.8㎡の2タイプ |
DOG COTTAGE
ドッグコテージ
| 棟数 | 1棟 |
|---|---|
| 定員 | 1~2名 |
| ベッド数 | ダブルベッド1台 |
| 設備 | 客室トイレ、洗面所、冷蔵庫、エアコン、電気ケトル、TV、ハンガーラック ※わんちゃんとのご滞在が可能です。 ※宿泊者専用男女別のシャワールームを別で設けております(各洗面・シャワー完備) ※お庭にわんちゃん用脚洗いシャワーを設置しております。 |
| 広さ | 建物13.04㎡ 専用テラス4.35㎡ 専用庭≒20㎡ |
| 注意事項 | ※体重10kg未満又は体高が40cm未満の小型犬までを目安とさせていただきます。上記の制限は必ずしも厳守ではございません。専用庭の柵がH60cm程度な為、飛び越えてしまわないように管理頂ければ上記より大きなワンちゃんも宿泊可能です。 ※各ワンちゃん同伴の宿泊棟にはドッグアンカーが備え付けられておりますので、状況に応じてご利用頂ければ幸いです。 ※ペット用のお食事のご用意はございませんので、ご持参頂ければ幸いです。 |
02 DOOM TENT
ドームテント
GARDEN SWEET A
ガーデンスイートドーム ≪type A≫
| 棟数 | 1棟 |
|---|---|
| 定員 | 6名 |
| ベッド数 | 常設ベッド:シングルベッド4台(4名様まで) ※5名様でご宿泊の場合はお部屋に設置のソファベットをご利用頂きます。 ※6名様でのご宿泊の場合は追加寝具(マットレスベッド)でのご就寝となります。 |
| 設備 | 客室トイレ、パウダールーム、シャワー完備、冷蔵庫、エアコン、電気ケトル、TV、ハンガーラック |
03 CAMPING TENT
キャンピングテント
NORTENT
フォレストキャンピングテント【ペット同伴可】
| 棟数 | 1棟 |
|---|---|
| 定員 | 4名 |
| ベッド数 | シングルベッド2台 ※3名以上でご宿泊の場合は追加寝具でのご就寝となります。 |
| 設備 | クーラーボックス、ポータブルエアコン、モバイルプロジェクター、殺虫剤系、虫よけスプレー、蚊取り線香、懐中電灯、家具類、カガミ、屋外コンセント、ゴミ箱、ティッシュ ※宿泊者専用男女別のシャワールームを別で設けております。(各洗面・シャワー完備) |
| 広さ | ドーム型テント(※こちらはドーム形状ですが、形式はキャンプテントになります)14.65㎡ + パーティーシェード12.96㎡ 専用敷地≒60㎡ |
| 注意 | ※体重10kg未満又は体高が40cm未満の小型犬までを目安とさせていただきます。上記の制限は必ずしも厳守ではございません。専用庭の柵がH60cm程度な為、飛び越えてしまわないように管理頂ければ上記より大きなワンちゃんも宿泊可能です。 ※各ワンちゃん同伴の宿泊棟にはドッグアンカーが備え付けられておりますので、状況に応じてご利用頂ければ幸いです。 ※ペット用のお食事のご用意はございませんので、ご持参頂ければ幸いです。 |
客室詳細
| チェックイン | 15時から アーリーチエックインも対応しております。時間に因っては追加料金が発生しますので、ご希望の場合は事前にご相談ください。 |
|---|---|
| チェックアウト | 10時まで レイトチェックアウトも対応しております。時間に因っては追加料金が発生しますので、ご希望の場合は事前にご相談ください。 |
| 無料駐車場 | 有 |
| 設備 | 殺虫剤系、虫よけスプレー、蚊取り線香、懐中電灯、家具類、カガミ、コンセント、ゴミ箱、ティッシュ ※BBQセット及び貸出コンロ時に包丁、まな板、食器類、カトラリー、グラス類、トングをご用意しております。 |
| アメニティ | ミネラルウォーター(冷蔵庫内)、ハンドソープ、ドライヤー、使い捨てスリッパ、バスタオル、フェイスタオル、歯ブラシ、ヘアブラシ、ボディスポンジ、シャンプー、コンディショナー、ボディソープ、洗顔料、化粧水、乳液、メイク落とし、コットンセット ※部屋着は各自お持込みをお願いいたします。 |
| ペット同伴について | ※わんちゃんのお部屋をご予約の場合は「狂犬病予防接種注射済証」、「混合ワクチン予防接種証明書」をお持ちください。 ※体重10kg未満又は体高が40cm未満の小型犬までを目安とさせていただきます。 上記の制限は必ずしも厳守ではございません。 専用庭の柵がH60cm程度な為、飛び越えてしまわないように管理頂ければ上記より大きなワンちゃんも宿泊可能です。 各ワンちゃん同伴の宿泊棟にはドッグアンカーが備え付けられておりますので、状況に応じてご利用頂ければ幸いです。 ※同伴されるわんちゃんの頭数制限は設けておりませんが、お部屋や専用庭の広さをご確認の上、ご判断いただくことをお勧めいたします。 |
for Beginners
設備・アメニティ
アメニティ
各お部屋には、お子さまや女性も安心してお過ごしいただけるアメニティをご用意しております。
わんちゃん用アメニティ
愛犬とのご滞在も安心。わんちゃん用のアメニティもご用意しております。
シャワールーム
敷地内に宿泊者専用の男女別シャワールームを設けております。